Concevoir, Amenager, Rehabiliter,

PROJETS

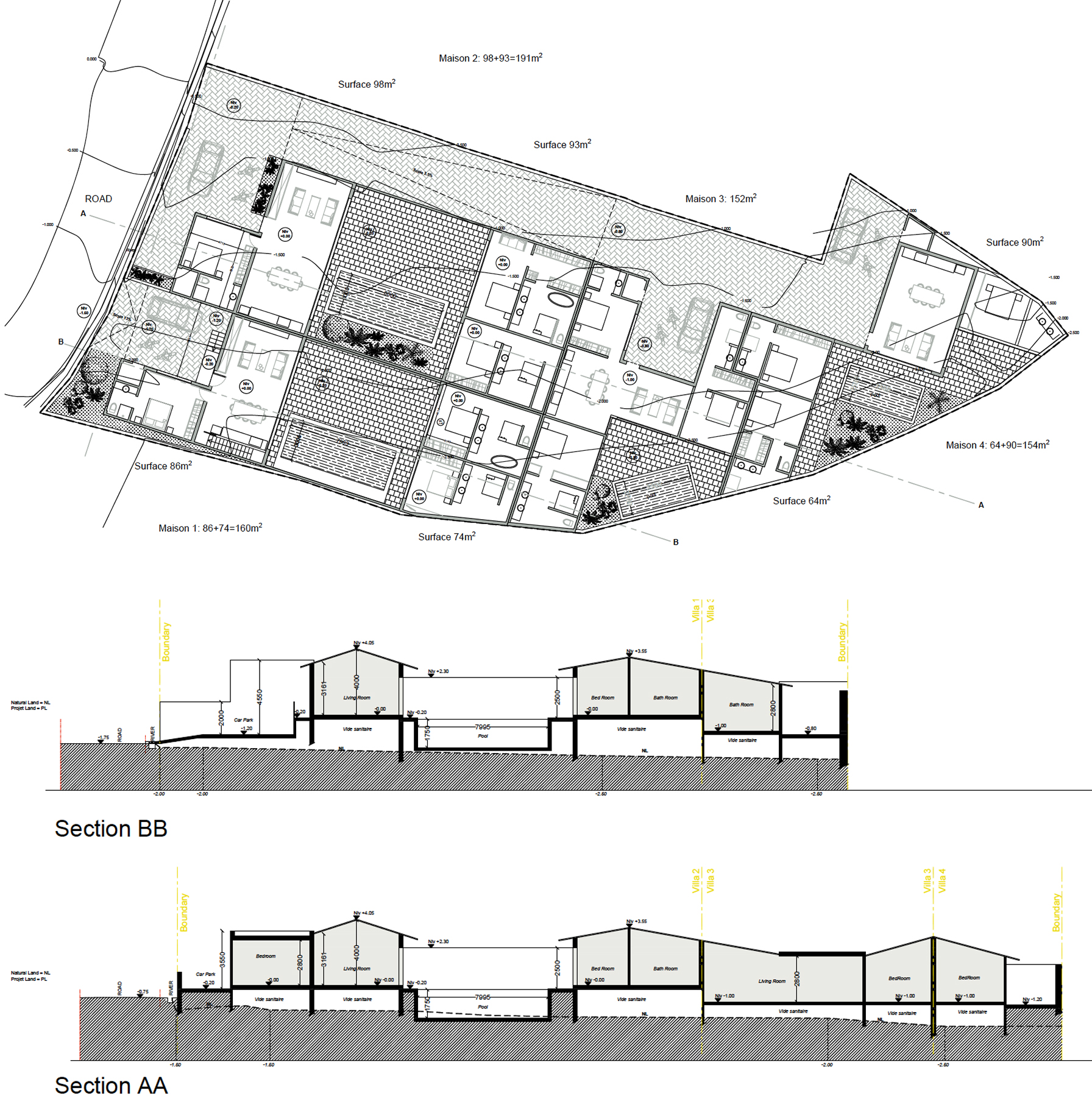
4 VILLAS - Bali

2018

Projet_4 Villas_Architecte

Au coeur de l'Indénosie sur la luxuriante île de Bali, j'ai eu le plaisir de concevoir un projet de 4 villas pour un Maitre d'Ouvrage privé. Ce projet fonctinnel rassemble 4 villas chacune composées d'un living, d'une cuisine ouverte, de trois chambres avec salle de bain, et d'un espace extérieur avec piscine. Chacune des villas dispose d'une parking privé.

Surface : 600m 2 soit 150m2 par villas.

Spécificté : la construction est prévu sur pilotis afin d'éviter toute innondation du à la montée des eaux lors de la sasion des pluies dans cette région humide de l'hémisphère Sud.

APPARTEMENT - Cannes

2019

Travaux_Appartement_Cannes

CREATION de PISCINE - Cap d'Antibes

2018 - 2019

Travaux_Appartement_Cannes

Au cours de mes différents projets j'ai eu l'opportunité de concevoir des projets de piscines pour des villas du Cap d'Antibes. La piscine est à la fois un élément d'agrément, qui embélit et ajoute une valeur à un bien immobilier, mais c'est avant tout un lieu de détente qui participe pleinement à la vie d'un lieu.

BOUTIQUE EPHEMERE

2019

travaux-boutique

Etude pour la conception d'une boutique éphèmere pour une marque de vêtements et accessoires de luxe. L'objectif était de créer un module pouvant s'adpter à divers site, principalement des plage pour la saison estivale.